
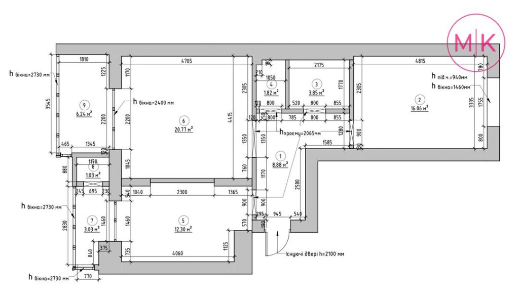
2-кімнатна квартира. Львів. вул. Угорська
Залежно від потрібних послуг вартість дизайн-проекту може стартувати від $10 за квадрат.
Також, у нас діє пакет “Легкий старт” за яким, від $100 за проект, можна отримати необхідний мінімум для ремонту.
Можна обрати окремо тільки 3D візуалізацію або тільки технічну документацію, залежно від Ваших потреб.
Додатково до кожного тарифу ми надаємо знижки від наших партнерів (а це все від опалення та матеріалів до меблів нашого виробництва та натяжної стелі).
Детальніше тарифи розписані на головній сторінці або телефонуйте нам – +38 (067) 352-50-06
Працюємо по всій Україні та за її межами, реалізовували проекти в таких містах як: Тернопіль, Львів, Івано-Франківськ, Хмельницьк, Рівне, Луцьк та інших
Загальну вигоду можна поділити на дві групи:
- Пряма економія від 10% – це знижки які ми надаємо від наших партнерів (це всі категорії потрібні для ремонту починаючи від опалення та сумішей для ремонту закінчуючи меблями нашого виробництва та натяжною стелею)
- Непряма вигода до 40% – це економія за рахунок вибору оптимальних матеріалів, оптимальної якості та кількості для ремонту. У Вас не залишиться гори не використаних матеріалів на балконі після ремонту, не будете переплачувати за непотрібні бренди чи платити двічі за неякісні. Додатково не потрібно буде нічого переробляти та все буде максимально функціонально та продумано
Залежно від тарифу Ви отримаєте:
- заміри
- обмірний план
- план демонтажу
- план монтажу
- план роташування меблів
- візуалізації
- план підлоги
- план теплої підлоги
- план стелі
- план оздоблення стін
- розташування освітлення
- розташування розеток і вмикачів
- 3D види приміщень
- підбір матеріалів
- креслення конструктиву меблів
- прорахунок вартості матеріалів
- віртуальний тур
- детальні схеми вузлів
- план вентиляції
- система розумний будинок
- пошук будівельної бригади
- контроль виконаних робіт
- консультації протягом усього ремонту
- вирішення всіх проблемних моментів
- виїзд для підбору матеріалів
- контроль за дотриманням графіку будівельних робіт
Для того, щоб отримати приклад альбому з виконаним проектом – залишайте заявку на сайті або дзвоніть – +38 (067) 352-50-06
Залежно від тарифу та квадратури дизайн-проект може займати від декількох тижнів до декількох місяців, щоб дізнатись детальніше конкретно у Вашому випадку – заповнюйте заявку на сайті або дзвоніть – +38 (067) 352-50-06
Отримати консультацію
Обовʼязкове поле – телефон для звʼязку. Інші відповіді допоможуть нам краще підібрати спеціаліста для консультації.
Якщо зручніше – пишіть в наш інстаграм або телефонуйте: +38 (067) 352-50-06