Однородинний будинок площею 76 кв.м. Нашим завданням від замовника було створити простір для молодої сім’ї. Викликом стало те що нам передувало перетворити невеличкий літній будинок в затишне місце для проживання цілорічно.
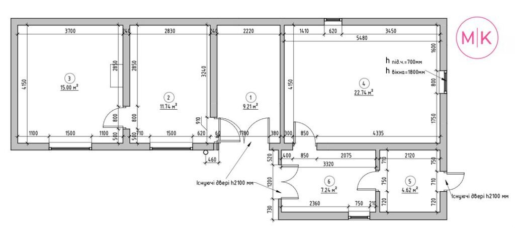
Проект передбачав зонування будинку на окремі функціональні зони, а саме: вхідну зону, спальню, санвузол, окрему дитячу, вітальню, та кухню з вільним виходом на внутрішній дворик та лаунж зону. Нами було обрано окремий єдиний стиль в якому поєднались світлі, природні кольори та текстури а також акцентний, улюблений колір замовників – смарагдовий. Добавимо сюди трішки текстилю для створення затишку, камін що створює тепло в домівці, правильно продумані світлові сценарії і отримуємо будинок в якому приємно проводити свій вільний час, теплі вечори в колі сім’ї а також зустрічати компанії друзів та знайомих.
Чи справились ми з початковим завданням? Звичайно, замовники були приємно вражені, а ми отримали новий досвід в проектуванні.
